Rest and Ride: Bike Repair and Café
by jdebaugh in Design > Digital Graphics
2462 Views, 21 Favorites, 0 Comments
Rest and Ride: Bike Repair and Café





.jpg)





Hello, and welcome to my project! My name is Jack. I am (or, technically, recently was) a senior at Severna Park High School and will be attending MIT this fall. From taking many Project Lead The Way (PLTW) classes that my school has to offer including Civil Engineering and Architecture, Introduction to Engineering Design, and Computer-Aided Design 2, I have gained significant experience using Autodesk Inventor and Revit. I’ve also been part of ACE (Architecture, Construction, and Engineering) Club for four years. From each building design challenge that I’ve done as a member of this after-school club, I have gained experience in design, improved my problem-solving skills, and learned how the various fields involved in a building’s construction must work together.
It was through ACE Club that I learned about the Make It Modular Student Design Challenge. I thought that this project would be a great opportunity to put my Inventor and Revit skills to use. In this Instructables, I would like to walk you through the process I took to create my project, Rest and Ride: Bike Repair and Café. I hope you enjoy it!
What is Rest and Ride: A local bike repair shop and café housed in one structure.
Where is it: Located on the Baltimore and Annapolis Trail, specifically in the town of Severna Park, Maryland.
Target customers and population: Local members of the community that use the trail.
Why this business: Few bike repair and snack/refreshment businesses exist alongside the trail.
Supplies
Physical Supplies:
- Computer (with Autodesk Revit and Inventor downloaded)
- Phone (to take photos)
- Measuring tape (at least twenty feet long)
- Roll of tape
- Pencil
- Eraser
- Sketch paper
- Ruler
- Colored pencils
Digital Part Files:
From Revit City:
- Shipping container
- Street light
- Downspout
- Rolling trash can
- Cylindrical trash can
- Small interior trash can/recycling bin
- Balcony trash can
- Bike shelter
- Bench
- BMX bike
- Bike 1
- Bike 2
- Bike rack
- Octagonal picnic table
- Playground
- Bicycle planter
- Barn outdoor light
- Round table with chairs and umbrella
- Wood table and chairs
- Tool chest
- Gas meter
- Concrete splash block
- Spiky plant in pot
- Green wall plants
- Compressor and condenser coil unit
- Duplex outlet
- Chest freezer
- Wire shelf
- Wall-mounted shelves
- Simple clock
- Mechanical clock
- Large indoor plant
- Duplex switch
- Refrigeration unit
- Stack of cups
- Stool
- Coffee machine
- Pen
- Tablet-based cash register
- Thermostat
- Fire alarm pull station
- Fire alarm
- Clipboard
- Security Camera
- Single switch
- Sink and counter
- Toilet paper holder
- Paper towel dispenser
- Bike hook with bike
- Electric power panel
- Tube/cartridge recycling bin
- Workbench
- Workbench with tools
- Outdoor potted plant
- Gas furnace
- Entry doors
- Column footing
- Mirror
- Blower fan and evaporator coil unit
From ProdLib:
From GrabCAD (to put these in the Revit model, open them in Inventor, make any necessary changes, and then export them as .rfa files):
- Bike handlebar
- Bike handlebar grips
- Bike suspension fork
- BMX tire and rim
- Bike pedals
- Screwdriver
- Wrench
- Bike seat
- Pliers
- Bike helmet
- Bike cassette
- Water bottle
- Bike water bottle holder
- Road bike tire and rim
- Wide bike tire
- Bike tire pump
Inventor Parts I Created (to put these in the Revit model, open them in Inventor, make any necessary changes, and then export them as .rfa files):
- Box of snack bars
- Café sign
- Cardboard box
- Hours Sign
- Large sports drink bottle
- Larger snack bag
- Medium Bottle
- Repair station
- Sign by trail
- Small bottle
- Smaller snack bag
- Solar power bank
- Store hook
- Tube and cartridge recycling sign
- Wicker trash can
Photos Used for Posters (click on the name of the poster to access the image):
- Poster next to tube and cartridge recycling (Source)
- Bicycle blueprint in café (Source)
- Poster over chest freezer (Source)
- Poster by café entrance (Source)
- Poster in bathroom (Source)
- Poster next to bathroom door (Source)
- Poster between front bike shop windows (Source)
- Poster next to workbench with tools (Source)
Initial Brainstorming


Early on, I decided that I wanted my project to be an entrepreneurial pop-up. After some brainstorming, I came up with two ideas. My first idea was to create a kayak and paddle board rental station. As a native Marylander, I live near many Chesapeake Bay tributaries, where kayaking and paddle boarding are arguably the best ways to explore the local waterways. Not only would this rental station let people enjoy kayaking and paddle boarding without having to buy their own, but also local residents could pay a small fee to store their personal kayaks or paddle boards there.
My second idea was to create a bike repair shop. My town, Severna Park, has a paved trail that runs through it, called the Baltimore and Annapolis Trail (B and A Trail). Not only can people take a bike ride, walk, or run on the trail, but also the trail connects many residential homes to public spaces, making the trail an eco-friendly “way of travel.” Personally, I find myself using the B and A Trail (which is practically located in my front yard) almost every day. In downtown Severna Park, there is a bike repair shop and there are a few food places that are situated alongside the trail. These businesses receive plenty of traffic from B and A Trail goers. However, aside from this one spot on the trail, there aren’t any notable places to grab a quick bite or get bike service at any other point on the 13.3-mile-long trail. And so, I thought why not combine both food and bike repair into one business model that can be replicated at other locations along the trail? Using a few containers, I could make a modular building that could be built right alongside the trail. That way, any trail goers can enjoy a refreshing drink or snack, cyclists can have their bikes repaired and serviced, and members of the local community can simply gather there and enjoy the outdoors. With the modularity that shipping containers have to offer, exact replicas, or perhaps similarly designed but different-sized bike repair shops and cafés could be established at different points along the trail.
Ultimately, I decided to pursue the latter idea. This idea interested me more, and the more I thought of how I would pursue it, the more unique features and design ideas came to mind. That, and since the bike shop could also serve as a Covid-era public space in addition to being an entrepreneurial pop-up, I was even more sold on the idea!
Proposed Site Location




Before making initial sketches of a building, it is crucial to have a good understanding of the building site. Although Rest and Ride could be implemented at a variety of different locations along the trail, for the purpose of this Make It Modular Challenge, I will pick one location and design a building specific to it. The largest photo above shows the proposed build site. I picked this location for a few reasons. First, there is a fairly wide strip of grass along the trail, ensuring that only a few trees would need to be removed. At the edge of the woods near the trail, the forest is mostly made up of brush with a few large trees scattered within (bottom right photo). Most of these trees are tall pines (Virginia Pine, I think) with shallow root systems and branches that are prone to breaking (source). The power company that manages the electric lines that run along the B and A Trail often cuts these trees back. Thus, removing a few pines and replanting some trees after the completion of construction would pose little disturbance to the local environment.
Second, this location is only a few hundred feet from a trail-side Ranger Station (top right photo). The Ranger Station has public restrooms, which means that Rest and Ride won’t need public restrooms, saving both space and money. In addition, this area of the trail is about 200 feet away from the nearest parking lot and road (right middle photo). The close proximity of the road and parking lot results in more trail traffic in this area of the trail, as well as makes deliveries of bike parts, food, and beverages to Rest and Ride fairly simple. The trail at this site is completely straight, meaning that the bike shop needs to be approachable from either direction of the trail. The site itself has no (or very little) elevation change.
Inspiration




I wanted to research some shipping container building designs before I began sketching my own design. A design I especially like is when shipping containers are stacked to create two stories, with the second-story container often being oriented perpendicular to the first-floor ones (large photo). With this type of perpendicular design, the roof of the first-story containers can also serve as a deck (top right photo). Since shipping containers also have a set of doors, I wanted to somehow keep these doors functional in part of my design (right middle photo). And lastly, I would like to create a design that incorporates large windows, specifically on the small sides of the containers, allowing light to enter everywhere on that side of the container (bottom right photo).
Understanding the Size of a Shipping Container


In addition to design inspiration, I also wanted to get a feel for the size of a shipping container. To do so, I taped out a twenty-foot-wide by eight-foot-wide rectangle (left photo). This space is not huge. If I put my arms out, there is about a foot of extra space on each side between my hand and the container wall. Taking large steps, I can walk the length of the shipping container in six or seven steps. It’s also important to keep in mind that internal walls will make this space even smaller. I even put some common objects within the taped-out space to get a better sense of scale.
Conceptual Sketches



With some inspiration in mind, I made a few conceptual sketches. My first sketch (large photo) makes use of four containers; three on the bottom level and a fourth one on the second level. My second sketch (top right photo) incorporates two containers stacked on top of each other, with the higher container twisted to the side. My third conceptual sketch (bottom right photo) also uses four containers. However, one of the three bottom-level containers is vertically oriented and used to house a staircase.
From the three sketches, I decided that I would pursue a design most similar to my first sketch. This design provides the most space for the bike repair area (three containers versus one or two). After looking back at my taped-out rectangle, two containers would barely be enough for the bike shop. With three containers on the first floor, my first sketch also has the most balcony space when compared to the other two designs. In addition, the first design would likely be the most simple to physically build, thus making it the most cost-efficient. The “twist” of design two makes that structure more complex to build while the vertical container used in the third design isn’t necessarily needed, thus adding unnecessary expenses to the building.
Floor Plan Sketches


Upon deciding to move forward with my first design, I made two quick floor plan sketches. I laid out some basic pieces of furniture, created general dimensions for the two rooms on the first floor, and drew some orange lines to represent where natural light would be entering from. Although I did make some design changes after making these floor plans, the general layouts remained the same.
Digital Model - Overview

Now, I will begin walking through the steps I took to create the digital model of Rest and Ride. I used Revit to create the model, as well as Inventor to make some specific parts not available in the Revit library or on websites like Revit City. Steps 8 through 39 document the whole process.
IMPORTANT, PLEASE READ:
The text of each step will be divided into five parts. The first part will be an overview of what is completed in that step (titled "Overview"). The second part will explain how I accomplished that step using Revit and/or Inventor (titled "Digital Construction"). The third part will explain how that step would be accomplished if the building were to be physically built (titled "Physical Construction"). The fourth part will include any research done, calculations made, or any other further explanations behind certain design choices (titled "Important Info"). The fifth and final part will note materials and other sustainability-related information (titled "Materials and Sustainability").
Digital Model - First Floor Shipping Containers





Overview: Orient the ground-level shipping containers and edit them to create one large room, as well as an opening for the bike shop entrance.
Digital Construction: To start, we must create a new Revit project. Launch Revit. Under "Models," select "New" and then choose the "Imperial-Architectural Template" from the drop-down menu. Once we create the project, rename the "Level 1" floor plan to "Bottom of Containers." Do this by going to the "Project Browser," right-clicking "Level 1" under "Floor Plans," and then selecting "Rename." Double-click on the floor plan you just made to ensure that it is open.
Now we can place our ground-level shipping containers. Download the shipping container from the "Supplies" section. Upgrade the model when Revit prompts you. In the upper ribbon select "Load into Project." The container can now be placed on the level "Bottom of Containers" by clicking in the work area. Download the shipping container two more times and place these containers at the level "Bottom of Containers." By downloading the containers separately, we can edit each one without changing the appearance of the others.
Staying on the level "Bottom of Containers," click and drag the containers, as well as use the arrow keys to align the containers as shown in the bottom right rendering (after selecting "Two More Images"). When a container is selected, clicking the SPACE key rotates it 90 degrees. The containers should be touching at adjacent sides.
Lastly, we need to edit each container. Double-click the left container. Delete the doors by selecting the door parts and clicking DELETE. The same can be done to remove the right wall. It should now look like the top right rendering. Next, select "Load into Project" and ensure to "Overwrite the existing version and its parameter values." Carry out the same process for the middle container, except this time delete the left and right walls so it looks like the right middle rendering (after selecting "Two More Images"). Carry out the same process again for the right container, except this time delete the left wall and the doors. We also need to create a wall to cover where the doors should have been. To do so, click on the existing narrow wall and copy it. Then, paste it on the opposite side of the container and use the arrow keys to carefully align the wall with the rest of the container. It should look like the bottom left rendering (after selecting "Two More Images"). Load the right container back into the project. With that, our edited containers should look like the large rendering.
Physical Construction: Realistically, the containers would be placed after the foundation is created. The containers would need to be put in place using a small crane or perhaps a large forklift. The walls would be removed with a metal grinder. The doors would be removed with a metal grinder and/or wrenches. A wall for the right container would be made with the leftover walls removed from the other containers. This wall would be welded in. The containers would be attached to each other by welds and/or bolts.
Important Info: You may notice that I chose to keep the doors on the middle container. As you will see later in the project, these doors will remain functional and will serve as a rear employee entrance into the bike shop. The opening on the left container will be the bike shop's main entrance.
Materials and Sustainability: Used containers should be utilized. It is important to check each container for rust and corrosion because if there is too much, that container should not be used.
Digital Model - Foundation



Overview: Make a strip footing foundation to support the three containers, the area in front of the bike shop entrance, and the staircase base.
Digital Construction: We first need to make a new level. In the "Project Browser," under "Elevations," double-click any of the four views. In the top ribbon, select the "Architecture" tab. Click "Level". Draw a level below the containers. Double-click the level name and change it to "Footer Top." Then, double-click the dimension and change it to - 3' 0". Close the elevation view.
Now we can draw the foundation walls. First, go to the "Bottom of Containers" floor plan. In the top ribbon, select the "Architecture" tab and click the wall tool. In the "Properties" menu, click the dropdown arrow and change the wall to "Generic - 12" Masonry." Now, using the container edges as a guide, create a foundation wall going around the outside edges of the containers, as well as along the area between the containers where they are connected. Also, make foundation walls for the entrance area (about six feet long by nine feet wide). Next, make a foundation wall outcropping for the stairs that extends about four feet from the main foundation. This outcropping should be about 6.5 feet from the rear foundation wall. Now, click the small 3D "house" at the top of the screen to enter the 3D view. Hold CRTL and click to highlight all the foundation walls. In the Properties menu, change the "Base Constraint" to "Footer Top" and the "Top Constraint" to "Bottom of Containers."
Adding footings is simple. In the ribbon, select "Structure" and then "Wall" (located in the "Foundation" section). Just click on all of the foundation walls to add footings.
Physical Construction: After clearing and leveling the site, the foundation would be the first step in creating the physical building. An excavator or backhoe would be used to dig where the foundation would go. Then, molds for the footers would be made with wood. Next, the footers would be poured. After the concrete dries and the molds are removed, the foundation walls would be constructed with concrete masonry units (CMUs). Workers would stack the blocks, using rebar and cement poured in the CMU cores to reinforce the walls, and once the cement dries, grout would be put in the spaces between the blocks. Once everything is dry, the dirt that was dug out would be used to fill the open areas between the foundation and the ground.
Important Info: Unfortunately, since this business is not located on a parking lot, I can't advantage of preexisting pavement. However, since Rest and Ride will be two containers tall, it would likely be necessary to create a dedicated foundation anyway, especially since parking lots are graded to keep water from pooling.
With some research, I found that the Maryland frost line depth is thirty inches (source). To be safe, I ensured that the top of the footers extend six inches below the frost line.
Materials and Sustainability: I chose to use a strip footing foundation because it creates plenty of support in ground that can freeze to significant depths, all while using less concrete than an ordinary slab foundation with concrete footings. To improve the sustainability of Rest and Ride, environmentally-friendly concrete masonry units (CMUs) like Faswall Green Building Blocks can be used to create the foundation walls (source). These CMUs are made using a high percentage of recycled materials. Better yet, substitutes to traditional concrete such as green concrete and ashcrete could be used to create the concrete footings, helping to further reduce the environmental impact of Rest and Ride.
Digital Model - Second Level Shipping Container


Overview: Insert a fourth container that will serve as the second-story café.
Digital Construction: We first need to create another new level. In the "Project Browser," under "Elevations," double-click any of the four views. In the top ribbon, select the "Architecture" tab. Click "Level". Draw a level above the containers. Double-click the level name and change it to "Top of Containers." Then, double-click the dimension and change it to 9' 6" (the height of the containers). Close the elevation view. Make sure you are in the "Top of Containers" floor plan.
Next, we need to download the shipping container file again. Upgrade the model when Revit prompts you. In the upper ribbon select "Load into Project." The container can now be placed on the level "Top of Containers." Align the container with the left container of the first level. Then use the arrow keys to shift the container so it hangs about six feet off of the lower container (left photo).
Lastly, we need to edit this container. Double-click it. Then, delete the doors by selecting the door parts and clicking DELETE. Select "Load into Project" and ensure to "Overwrite the existing version and its parameter values." The second-story container should look like the rendering on the right.
Physical Construction: The same forklift or crane used to place the first-story containers would be used to position the second-story container. Again, the doors would be removed using a metal grinder and/or wrenches. This container would be attached to the first-floor one with welds and bolts. At this time, temporary columns would likely be put under the container until permanent columns are installed. The containers would be painted at this time, as well as receive a rust-proof exterior coating.
Important Info: The opening created by removing the container's doors will be the entrance to the café. The overhang of the second-story container has two purposes: it makes the shape of the structure more interesting to the eye and it provides cover for the entrance of the bike shop.
Materials and Sustainability: Again, a used container should be utilized. It is important to check the container for rust and corrosion because if there is too much, the container should not be used.
Digital Model - Entrances


Overview: Create curtain wall entrances for both the bike shop and the café.
Digital Construction: Go to the "Bottom of Containers" floor plan. In the ribbon, select the "Architecture" tab and then select the "Wall." In the "Properties" menu, click the drop-down arrow and change the type of wall to "Curtain Wall Storefront." Now, draw a wall that spans across the opening of the first-story container on the left. Click the green check to finish drawing the wall. To make the wall the correct height, select and highlight the whole wall. In the "Properties" menu, make sure that the "Base Constraint" is "Bottom of Containers," the "Base Offset" is six inches, the "Top Constraint" is "Top of Containers," and the Top Offset is -0' 6".
Now we will add the doors. Click on the bottom mullion, and then on the small pin that appears. Click DELETE to remove it. Also, remove the mullions that go through the middle of the wall. You will now see a line that runs through the middle of the wall. Delete that line using the same process for the mullions. We have now created a large glass panel, which we will proceed to replace with doors. Hover your mouse over the edge of this large piece of glass to select it. You may need to press TAB a few times until your cursor highlights the large glass panel. Click on it and then click the small pin that appears. We can now download the entry doors from the "Supplies" section. Load them into the project. Select the large glass panel again. In the "Properties" menu, click the drop-down arrow and select the doors that we just loaded into the project. If they are oriented the wrong way, go to the "Bottom of Containers" floor plan, click on the doors, and use the arrows that appear to change the direction the doors open.
We will use a similar process to create the café entrance. However, we first need to create a new level. Make a new level at an elevation of 19' 0" and name it "Top of Café Container." See the previous step if you forgot how to make a new level. Create a storefront curtain wall as we did for the bike shop, the only difference being that the "Base Constraint" should be "Top of Containers" and the "Top Constraint," "Top of Café Container." Leave the mullions in the middle. Next, in the ribbon, select the "Insert" tab and then select "Load Family." From the "English-Imperial Library," select the doors folder. Doube-click one of the single curtain wall doors. Now, select the large glass panel on the right side of the wall and unpin it. In the "Properties menu," click the drop-down arrow and select the door you just loaded into the project. Again, you may need to change the direction that the door opens.
Physical Construction: The easiest and most efficient way to install these entrances would be to have the curtain walls prefabricated. That way workers building "Rest and Ride" would only need to bolt or screw in the whole wall to install it. Lastly, caulk or some other waterproofing material would need to be put along the edges of the curtain walls to prevent moisture and other external elements from entering.
Important Info: I chose to have my entrances as curtain walls because they make the building much more appealing to enter, as opposed to doors simply being embedded in the corrugated metal of the containers.
Materials and Sustainability: The glass panels should be made from insulated glass (windows with two or more panes) to reduce the amount of heat transfer between the interior of Rest and Ride and the environment. Using low-E glass (glass panes that are coated with silver) will also help to reflect heat from the sun away from the interior (source). Although these types of glass will add some upfront costs to the construction of Rest and Ride, the money saved from using less energy to heat and cool the building quickly offsets the higher window costs.
Digital Model - Improved Structural Integrity

Overview: Insert beams to increase the rigidity of the first-floor containers.
Digital Construction: Go to the "Bottom of Containers" floor plan. In the ribbon, select the "Structure" tab and then select "Beam." The "W Shapes W 12X26" beam should appear in the "Properties" menu. Although a smaller beam would likely be used in real life, this beam works perfectly as a visual representation. In the light green rectangle that appears, make sure the placement plane is "Top of Containers." Now, draw two beams along the two lines where the containers share sides. Hit ESCAPE to exit the beam tool.
Next, we need to lower the beams a bit. In the "Bottom of Containers" floor plan, go to the small house at the top of the screen, click the drop-down arrow next to it, and select "Camera." Place the camera in the containers and then click again in the area that you want to see more closely. We have now made a 3D view. Click the edges of the view and use the blue dots to adjust the size of the view. Adjust the 3D view you just made so that you can see both beams. Use CONTROL click to select both of the beams. In the "Properties" menu, change both the "Start Level Offset" and the "End Level Offset" to -0' 2".
Physical Construction: The beams would be brought into the container through the back door (the set of container doors that we chose to keep). Each beam would be lifted and held in place with platforms. With brackets, the beams would be bolted to the reinforced edges of the containers. The beams may also be attached to the container with welds.
Important Info: I wanted to add some structural reinforcement to the bottom containers since they must support the weight of the café and the second-story balcony. Because the ground-level containers had some walls removed, they would be weakened structurally.
Materials and Sustainability: The beams I chose to depict are made from steel. I think that steel would be used in the actual construction of the building because the framing of the building (the containers) is also made from metal, making connections with brackets and welds relatively straightforward. I considered using beams made from laminated veneer lumber as they would be significantly cheaper than steel I-beams. However, due to the reason I mentioned above, as well as a lack of supporting columns in the middle of each beam, I ultimately decided to use steel I-beams.
Digital Model - Flooring




Overview: Install flooring in the bike shop and the café, as well as create a concrete slab for the bike shop entrance.
Digital Construction: We first need to create two new levels. One should be named "Bike Shop Floor" with an elevation of 0' 6". The other should be named "Café Floor" with an elevation of 10' 0". Go to the "Bike Shop Floor" floor plan. Select the "Architecture" tab and then select "Floor." In the "Modify Floors" tab that appears, in the "Draw" section, click on the rectangle. Now, draw the outline of the floor using the edges of the container as a guide. Select the green check to finish. Click on the floor you just created. In the "Properties" menu, make sure "Floor Generic - 12"" is selected. Click "Edit Type" and then select "Duplicate." Name the floor copy "Bike Shop Floor." Now, under the "Construction" section, select "Edit" to the right of "Structure." Change the thickness of "Structure [1]" to 0' 6". Change the material of the floor by clicking on the three dots in the "Material" column. Select a material from the "Material Browser" and then select "OK". For visual purposes, I used precast concrete. Select "OK" again to load the edited floor into the project.
Repeat the above process for the second-story container, except this time make sure that the floor is at the "Café Floor" elevation. Name the floor type you make "Café Floor." For the café floor material, I chose birch.
To make the concrete slab for the bike shop entrance, create a floor at the "Bottom of Containers" level. If you want the concrete slab to be precast concrete like the inside of the bike shop, you can simply make sure the "Bike Shop Floor" is selected in the "Properties" menu before you draw the concrete slab outline.
Physical Construction: While the floors I created in Revit serve as a visual representation of the finish material, the actual floors would be much more complex. First, wood floor joists would be fastened into place. Insulation would be put in between the joists. Then, a subfloor made of plywood or oriented strand board (OSB) panels would be screwed onto the floor joists. Next, a layer of asphalt felt would be placed over the subfloor. And lastly, the flooring would be installed. The above diagram shows everything other than the insulation.
Important Info: I made the floors in Revit six inches thick because that would be the approximate thickness of the floors in real life. If 2x4 planks are used for the floor joists, at most one inch think plywood/OSB for the subfloor, and at most one inch thick material for flooring, this would be roughly six inches thick.
Materials and Sustainability: In reality, the actual flooring for the bike shop and the café would be made from commercial-grade vinyl flooring. The bike shop would use sheet vinyl with a concrete look. Since the bike shop is a larger area, using sheet vinyl as opposed to vinyl planks will cut down on costs. Sheet vinyl is also much easier to clean than vinyl planks. The café would be constructed from vinyl planks with a wood finish. To improve the eco-friendliness of Rest and Ride, only no- or low-VOC (volatile organic compounds) vinyl that is FloorScore-certified should be used. Floors that are FloorScore-certified must be compliant with strict VOC emissions standards (source). That, and there are also plenty of vinyl options that use some recycled content. Although vinyl floors may not seem like the most environmentally conscious option at first glance, the longevity (many floors come with lifetime warranties), eco-friendly options, low price, durability, and low maintenance that these floors have to offer make them a great choice.
I did consider using poured concrete in the physical construction for the bike shop floor. However, if the bike shop were to ever be relocated, or if the bike shop were to be taken down, poured concrete would be much more difficult to remove than vinyl flooring and would take away from the reusability of the shipping containers.
For insulation, I would use stone mineral wool (Roxul). I'll explain its benefits in the next step.
Image source: Wall section view
Digital Model - Ceilings and Walls


Overview: Create walls and ceilings for the bike shop and the café.
Digital Construction: Go to the "Bike Shop Floor" floor plan. In the ribbon, select the "Architecture" tab and click on the "Wall" tool. In the "Properties" menu, click the drop-down arrow and select the "Basic Wall Generic - 5"." Click "Edit Type" and then select "Duplicate." Name the wall copy "5" Interior Wall." Now, under the "Construction" section, select "Edit" to the right of "Structure." Change the material of the wall by clicking on the three dots in the "Material" column. Select a material from the "Material Browser" that will represent the color of the interior wall and then select "OK". I chose to use paint blue. Select "OK" again to load the edited wall into the project. In the light green box, make sure the "Level" is "Bottom of Containers" and the "Height" is "Unconnected" and set to 9' 4". Now, create walls alongside the inside edge of the containers, making sure to go around the edges of the containers that extend some into the room (left rendering).
Use the same process and "5" Interior Wall" to create interior walls for the café. When drawing the walls, ensure that the "Level" is "Bottom of Containers" and the "Height" is "Unconnected" and set to 18' 10".
To create the bike shop ceiling, first, go to the "Bike Shop Floor" floor plan. In the ribbon, select the "Architecture" tab and click on the "Ceiling" tool. In the "Properties" menu, click the drop-down arrow and select the "Basic Ceiling Generic." Click "Edit Type" and then select "Duplicate." Name the ceiling copy "Interior Ceiling." Now, under the "Materials and Finishes" section, click the three dots next to the current material. Select a material from the "Material Browser" that will represent the color of the ceiling and then select "OK". I used white paint. In the "Modify Place Ceiling Tab," select "Sketch Ceiling." Using the interior walls as a guide, sketch the outline of the ceiling. Before pressing the green check to finish the ceiling, make sure that the "Height Offset" in the "Properties" menu is set to 9' 1".
Use the same process and "Interior Ceiling" to create the ceiling for the café. When drawing the café ceiling, make sure that, in the "Properties" menu, the "Level" is "Top of Containers" and "Height Offset" is 18' 7".
Also, don't forget to put walls and ceilings around the beams in the bike shop. You will use a similar wall- and ceiling-drawing process as you did earlier. However, the "Height Offset" for the ceilings and walls will be different.
Physical Construction: First a wood frame for the walls would be made using 2x4 planks. Then, a similar wood frame for the ceiling would also be made. It would be here in the building's creation that plumbing and wires are routed through the walls and ceilings. Although we will later create a plumbing and electrical plan, these features can't be easily incorporated in the 3D model. Insulation would be installed next. After this is done, wallboard would be screwed onto the studs.
Important Info: Including the 2x4 framing, drywall, and any space between the containers' walls/ceilings and the wood frame, the total thickness of the walls and ceilings would be about 5 five inches, as demonstrated in the Revit model.
Although the containers themselves do create exterior walls, interior walls are still necessary for a few important reasons. First, since the container walls are made out of metal, there needs to be insulation between the exterior and interior walls, or else the interior temperature will fluctuate too much. Interior walls are also needed to cover wires, plumbing, and any other features or connections that usually are routed through the frame of a building. And lastly, interior walls and wood studs allow for much easier installation of wall-mounted appliances and fixtures, like sinks or shelves.
Materials and Sustainability: For insulating the walls, ceilings, and floor, I would use stone mineral wool (Roxul) insulation. Roxul includes high amounts of recycled content (75 to 90%), is flame-retardant, is unaffected by moisture, and is easier and safer to install than many other insulation alternatives (source).
For wallboard, I would use MgO (Magnesium Oxide) board. This alternative to drywall is much less energy-intensive to manufacture, is recyclable, and can even be "composted to use as plant nutrients" since it's made using non-toxic materials (source).
Digital Model - Windows


Overview: Install windows in the café and bike shop.
Digital Construction: To make the windows, we will actually use the "Wall" tool. To create the bike shop windows, first, go to the "Bike Shop Floor" floor plan. In the ribbon, select the "Architecture" tab and click on the "Wall" tool. In the "Properties" menu, click the drop-down arrow and select the "Curtain Wall Storefront." Using the interior walls we created in the above step, we can draw the windows at the width and location that we would like them. Don't worry about "Base" or "Top Constraints." Once you are done drawing the first-story windows, enter into the 3D view. If you click on each curtain wall we just created, which acts as a window, you will see that arrows appear at the top and bottom of the window. Use these arrows to easily adjust the height of the window. You can easily delete mullions as we learned in "Step 11." For the first-floor windows, I only kept the mullions on the edge of the glass plane. To add mullions, select the "Architecture" tab and click on the "Curtain Grid" tool. Click on the curtain wall where you would like to place a mullion.
Windows for the café can be created with the same method as described above. However, when drawing the curtain walls, make sure you do that in the "Café Floor" floor plan.
When you create the windows, you will notice that the windows partially cut through the corrugated metal walls. Since the container sides are not classified as walls by Revit, window cutouts are not automatically made. Instead, we need to do these manually. Here is a link to the video that I learned from (video starts at the beginning of the section needed).
Physical Construction: In reality, the installation of the windows and interior walls must be done in conjunction with one another. Holes for the windows would be made with a metal grinder. Then, when the interior walls are made, builders would frame around the window cutouts. Next, the windows would be installed and caulk or some other waterproofing material would need to be put along the edges of the windows to prevent moisture and other external elements from entering. The wallboard would be fastened after the windows are installed.
Important Info: Aside from the windows on the side of the café, the windows I created are tall - almost from floor to ceiling. I wanted to make sure that the interior of Rest and Ride is bright and welcoming, and the best way to accomplish this is through plenty of natural lighting.
Rather than use windows from the Revit window library, I decided to make windows using curtain walls. This allowed me to easily customize the width and height of my windows, as well as add creative mullions.
Materials and Sustainability: See the "Materials and Sustainability" section in "Step 11."
Digital Model - Stairs to Café

Overview: Build stairs that go from the ground to the café balcony.
Digital Construction: To start building the stairs, make sure you have the "Bottom of Containers" floor plan open. In the ribbon, select the "Architecture" tab and then select "Stair." In the light blue rectangle that appears, make that the "Actual Run Width" is 4' 0". In the "Properties" menu, make sure the "Base Level" is "Bottom of Containers" and the "Top Level" is "Top of Containers." Make sure to change the "Top Offset" to 0' 7". To start drawing the stairs, click in the middle of the foundation outcropping that we made earlier for the stairs. Move the cursor towards the back of the containers until you have created eight risers, and once you do, click to set this part of the staircase. Now align the cursor at the rear of the containers, in line with the rightmost wall of the first-story containers if that wall were to be extended out. Click again to start the next run and move the cursor parallel to the back of the containers until no risers remain. Click to set that run into place. Next, click the 3D house above the ribbon to enter the 3D view. CRTL click to select both railings on each side of the staircase. In the "Properties" menu, click the drop-down arrow and the rail type to "Railing Handrail - Pipe." Now select the staircase itself and in the Properties menu select "Edit Type." In the "Construction" section, in the "Run Type" row, click the right box of that row and then select the three dots that appear. To make the stairs more visually appealing, we can remove the risers by unchecking the box in the "Riser" row. In the "Tread Material" row, we can also change the material of the treads. I used wood planks in my design. Click "OK." If you would like to change the material of the support, you must go to the "Right Support Type" row and click on the right box in that row and select the three dots that appear. You can then change the material in the "Material" row. Make sure to select "OK" when you are done. The material of the left support can be changed in the same way in the "Left Support Type" row. I made my support material copper. They wouldn't be made from copper in real life - I simply liked the way the copper looks when it's rendered in Revit.
To change the material of the railings, select one railing and then select "Edit Type." Click "Edit" in the "Rail Structure (Non-Continuous)" row. Then, you can change the material for each of the rails, ensuring to select "OK" when you are done.
Physical Construction: In real life, columns to help support the stairs would be built first, and then the stairs. Ideally, the stairs would come to the building site prefabricated, making installation much easier. A small crane could simply lower the stairs into place, and construction workers would simply attach the stairs to the columns and foundation. If the stairs are not prefabricated, the left and right supports would be attached to the columns and building foundations first. Next, the risers and landings would be screwed or bolted to the supports. Lastly, railings would be bolted or screwed to the risers.
Important Info: These stairs will allow customers to access the second-story café. They should be wide enough so that two people going in opposite directions on the stairs can pass each other.
Materials and Sustainability: The stair supports would be made from steel. The treads would be made from wood planks that will match the finish of the balcony and deck that we will create in the next step. The railings would be made from aluminum since this material is durable, rust and corrosion resistant, and recyclable. Better yet, many aluminum railings are made with up to 35 percent recycled metal (source).
Digital Model - Balcony and Lower Deck



Overview: Create timber joist structures to support the café balcony and the bike shop rear deck. Add flooring to the café balcony and the bike shop rear deck, as well as railings for the balcony.
Digital Construction: Creating decking and a timber joist system for the balcony and deck is rather complicated. Rather than explain it, here is a link to the video that I learned from (video starts at the beginning of the section needed). Before using the video, create a new level at an elevation of 10' 1" and name it "Balcony." Make sure you are in the "Balcony" floor plan when you begin watching the video. While following along with the video, when making a floor copy, name it "Balcony Decking" and ensure it has a thickness of two inches. Also, make sure the material is wood planks. When drawing the outline for the balcony, refer to the above renders to ensure that it is the right shape. When picking the timber type for the joist, select the 5x5 timber option. Set the "Fixed Spacing" option to 2' 0". When offsetting the joist system, offset it by -0' 2". The only difference when creating the bike shop rear deck is that the floor will be drawn when on the "Bottom of Containers" floor plan. The rear deck should be about eight feet by eighteen feet.
To add railings, select the "Architecture" tab and select "Railing." Make sure you are in the "Balcony" floor plan before doing so. Next, simply trace around the edge of the balcony. Lastly, before selecting the green check, change the rail type to "Railing Handrail - Pipe" in the "Properties" menu.
Physical Construction: First, posts with footings would be placed in the ground for the bike shop rear deck (this is not shown in the Revit model). Then, the timber joist systems for the deck and balcony would be made. The balcony joists would be bolted to the shipping containers and the deck joists would be bolted to the posts. Next, decking would be screwed onto the joists. Lastly, railings would be screwed onto the decking of the balcony.
Important Info: The balcony will be a place where customers can sit down to relax and grab a bite to eat or something to drink. The bike shop rear deck will be used by the bike shop employees. On days with nice weather, employees can service bikes on the deck.
Materials and Sustainability: See the "Materials and Sustainability" section of the above step to understand why aluminum railings are used in the design.
I would use composite decking for the deck and balcony. Composite decking is more durable and requires much less maintenance than traditional wood planks. Durability is important for the balcony since it will be a high-trafficked area. Also, most composite decking is made from recycled materials (source).
Digital Model - Columns and Footings


Overview: Insert columns and footings to support the container overhang, stairs, and balcony.
Digital Construction: In the ribbon, select "Insert" and then "Load Family." In the English-Imperial Library, select the "Columns" folder and load the "Round Column" into the project. Now go to the "Architecture" tab and select the "Column" drop-down arrow. Select "Column: Architectural." In the "Properties" menu, change the column type to "Round Column 06" Diameter. In the light green rectangle, change the "Level" to "Bottom of Containers" and the "Height" to "Unconnected." Type 9' 11" in the "Height" text box. Now you can place columns at the two corners of the balcony that are suspended in the air. To create columns for the stair landing and second-story container overhang, follow the same process but change the height of the columns (9' 6" for the second-story container overhang and 4' 2" for the stair landing). You can easily change the material of each column by selecting the column, then "Edit Type" in the "Properties" menu, and then selecting a new material in the "Materials and Finishes" section.
To create column footings, first, download the column footing from the materials section and load it into the project. Next, go to the "Bottom of Containers" floor plan. Select the "Architecture" tab and then select "Component". In the "Properties" menu, make sure the footing is selected. In the light green box, ensure that the "Level" is "Bottom of Containers." Place the footings concentric with the stair landing columns and the columns holding the balcony.
Physical Construction: The footings would be poured with the building's foundation. The columns supporting the second-story container overhang would be installed shortly after that container is fastened into place. The columns supporting the stair landing would be built before the staircase is installed. The columns supporting the balcony would also be built before the balcony is installed. These columns would be bolted to a metal plate in the concrete footing. These metal plates are placed into the concrete footings shortly after the concrete is poured. Once the concrete dries, these plates stay embedded in the footing.
Important Info: I used round columns to offset some of the "edginess" of the shipping container design.
Materials and Sustainability: The columns in the Revit model have a copper finish. However, in reality, the columns would be made from steel and painted brown. Although timber columns were an option, I felt that steel columns looked better with the metal shipping containers.
Digital Model - Café Roof and Green Wall








Overview: Create a roof for the café with solar panels, as well as install a green wall on the side of the café.
Digital Construction: Create a roof by going to the "Top of Café Container" floor plan. Select the "Architecture" tab and then selected the "Roof" tool. Select the rectangle in the "Draw" section of the "Modify Create Roof Footprint" tab. Draw a rectangle that extends about four inches wider than each side of the café container. Hover over the top line and right-click. Select "Toggle Slope Defining." Do this for the right and bottom line too, only leaving the left side of the roof footprint with a triangle next to it. Select the green arrow and enter the 3D view. Orient the structure so that you are looking at it from the front. You can now click on the roof and adjust the angle of it with the small blue arrows. While the roof is highlighted, select "Basic Roof Wood Rafter 8" - Asphalt Shingle - Insulated" in the "Properties" menu. To place the solar panels, download them from the "Supplies" section and load them into the project. Use the "Component" tool to place them on the roof.
To install the gutter, go to the "Architecture" tab and click the "Roof" drop-down arrow. Select "Roof: Gutter." Now, go to the 3D view and click on the roof where you would like the gutter. To install the downspout, download it from the "Supplies" section and load it into the project. Place it using the "Component" tool in the "Architecture" tab. You can adjust the dimensions of the downspout using "Edit Type." You can move it by selecting it in the 3D view and dragging it.
To create the walls, use the Wall tool and draw walls along the three edges of the container where the roof does not touch. Make sure the level of the wall is "Top of Cafe Container" and that the "Height" is "Unconnected." Select all three walls and select the "Generic - 8"" wall from the "Properties" menu. Duplicate the wall and name it "Café Roof Wall." Change the material of the wall to wood shake. Lastly, select the walls and in the "Modify" tab, select "Attach Top/Base" and then click on the roof. This connects the walls we just made to the roof.
To create a green wall, download the green wall plants from the "Supplies" section and load them into the project. Go to the "Balcony" floor plan. Now, go to the "Architecture" tab and select "Component." Chose the green wall in the "Properties" menu and mount them to the side of the container, using the café interior walls as a host. You will have to insert multiple green walls to cover the whole side of the café.
Physical Construction: First, a wood frame for the walls would be built. This wood frame would be attached to the second-story container. Next, Roxul insulation would be put on top of the container, as well as in the wall frame we just built. Buildings need to have more insulation in roofs than in walls, so since we can't fit a lot of insulation in the ceiling within the container, we can add more here. Sheathing would then be fastened to the frame. Next, a vapor barrier would be installed. Lastly, an exterior finish would be added. The roof would then be built. First, the rafters, beams, and other structural components would be built. Then, solid decking would be installed. Next, a felt underlayment would be attached. Shingles or another finishing exterior material would be added after the underlayment. And lastly, the solar panels would be mounted to the roof.
To create the green wall, first, metal scaffolding would be attached to the café container. Then, a rigid PVC sheet would be fastened to the metal scaffolding. Next, sheets of polyamide felt would be attached to the PVC sheet. A growth medium including soil and stone would be placed between the sheets. Lastly, plants would be placed in the openings of the felt sheets. Ideally, plants that like plenty of sun and require little water (aside from the occasional Maryland storm) should be planted. Some plants I would consider using are succulents like Cape Blanco and Angelina, vines like Boston ivy, and perhaps some smaller shrub-like plants including thyme and rock rose (Select 5 More Images to see these plants. From left to right, the photos are in the same order as the plants are listed.). These plant species provide a variety of different textures and since some bloom, the green wall would be bursting with colors.
Important Info: Not only does the roof make the building more interesting to the eye, but also it helps rainwater to drain off of the otherwise flat container top. The roof also houses six solar panels, each producing 350 watts in ideal conditions. More about the solar panels and other energy-related info is discussed in "Step 39"
Initially, I had planned to implement a green roof. However, this would have left no room for solar panels and since the roof isn't readily visible, customers at Rest and Ride would not be able to enjoy the beauty of a green roof. Instead, I decided to use a green wall. The green wall still provides many environmental benefits while allowing customers to relax and enjoy the plants as they sit on the balcony. The green wall is much more useful when it comes to immersing people in a natural setting. That, and by having a conventional roof, I can take advantage of that space to place solar panels.
Materials and Sustainability: See step 14 as to why Roxul insulation would be used. For the roof, shingles would be used since they are a relatively cheap roofing option. To improve their ability to deflect heat, the shingles should be treated with reflective pigments (source). The walls would be covered with wood shakes. I chose to use this material for these walls because I like the natural look they create. Wood shakes also have good insulation properties and are environmentally friendly since they are a natural product (source).
The green wall provides many benefits. The plants remove air pollutants, keep the café cooler during the summer months, and provide a more calming and natural setting on the café balcony.
Image sources: Green wall diagram, Cape Blanco, Angelina, Boston ivy, Thyme, Rock rose
Digital Model - First-Floor Rooms and Doors


Overview: Divide some parts of the bike shop into smaller rooms to create a bathroom, electrical/storage closet, and HVAC closet.
Digital Construction: Go to the "Bike Shop Floor" floor plan. Click on the "Architecture" tab and select the "Wall" tool. In the "Properties" menu, select the "5" Interior Wall." Draw the walls using the dimensions of the floor plan above as a guide. Make sure that the walls go up to the bike shop ceiling.
Install doors by selecting the "Door" tool in the "Architecture" tab. Select "Load Family." Double-click the "Doors" folder, then double-click the "Commerical" folder. Load the "Door-Passage-Single-Flush" into the project. While still in the "Bike Shop Floor" floor plan, install the doors in the walls that you just created. Do so by selecting "Door" in the "Architecture" tab. Then, select the door size in the "Properties" menu. I used "Single-Flush 30"x80"" doors.
Physical Construction: These partitioning walls would be constructed at the same time as the other interior walls. First, 2x4 framing would be made and openings would be created for the doors. Insulation would not be installed. Next, any wiring or plumbing would be routed through the frame. Then, wallboards would be screwed on both sides of the wall. Lastly, the door frames and the doors would be fastened.
Important Info: None
Materials and Sustainability: See the "Materials and Sustainability" section in "Step 14" to understand why I would use MgO board as wallboard.
Downloads
Digital Model - First-Floor Wall-Mounted Components







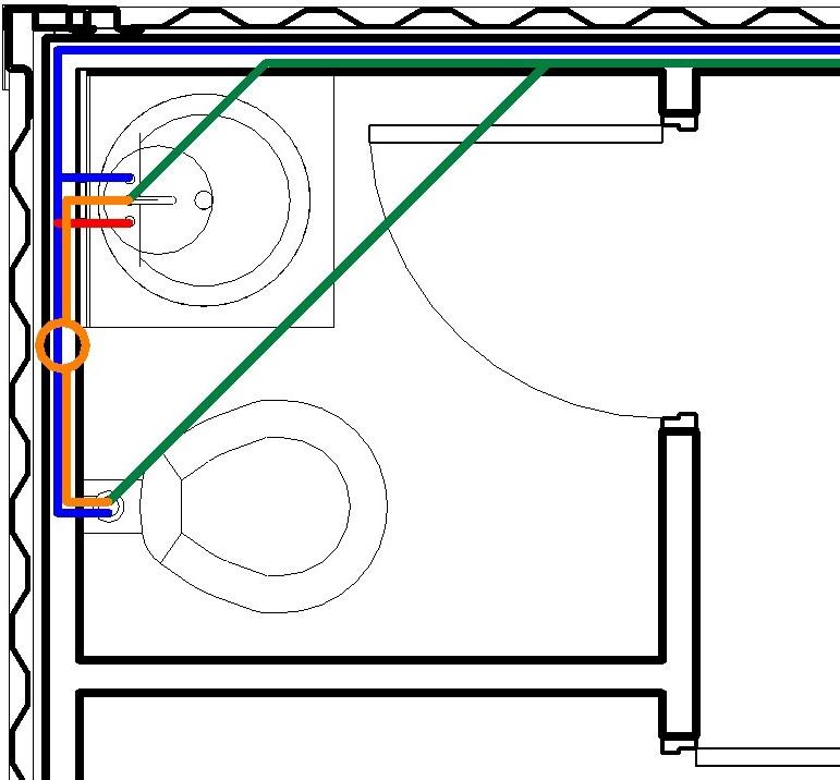
Overview: Install wall-mounted components in the bike shop including duplex outlets, duplex light switches, single light switches, fire alarms, fire alarm pull stations, and a thermostat.
Digital Construction: Go to the "Supplies" section and download the duplex outlet, duplex light switch, single light switch, fire alarm, fire alarm pull station, and thermostat. Load these objects into the project. Next, go to the "Bike Shop Floor" floor plan. Select the "Architecture" tab and click on the "Component" tool. Select these components you just downloaded from the "Properties" menu. To install these objects, simply click on a wall, exactly where you would like to have that component. These components will be automatically placed at the correct height. You can refer to the above floor plan to see where these components should go. The green circle shows where the thermostat is the red circles show where the fire alarms are, and the purple circles show where the fire alarm pull stations are.
Physical Construction: There would already be holes in the drywall and connections in the wall where these components should go. Workers would simply attach these parts to their respective connections.
Important Info: What the switches control will be shown in "Step 38" in the electrical plan.
Materials and Sustainability: Aside from the manual switches, the lights will also be connected to an automatic system that turns off any lights that remain on after there is an extended period of time without any movement in the room.
Downloads
Digital Model - First-Floor Ceiling-Mounted Components







Overview: Install ceiling-mounted components in the bike shop including square flush mount lights, round flush mount lights, linear supply diffusers, return vents, a bathroom vent, and security cameras.
Digital Construction: Download the security camera from the Supplies section and load it into the project. Download the "Return Grille with Trim - Ceiling Mounted" (Mechanical > MEP > Air-Side Components > Air Terminals), "Supply Diffuser with Plenum - Linear Slot - Hosted" (Mechanical > MEP > Air-Side Components > Air Terminals), "Exhaust Grille - Rectangular Face Square Neck - Hosted" (Mechanical > MEP > Air-Side Components > Air Terminals), "Ceiling Light - Flat Round" (Lighting > MEP > Internal), and "Ceiling Light - Linear Box" (Lighting > MEP > Internal) from the Revit "English-Imperial" library. Next, go to the "Bike Shop Floor" ceiling plan. Select the "Architecture" tab and then click on the "Component" tool. Select the various ceiling-mounted components from the "Properties" menu and simply click on the ceiling plan where you would like to place that component. You can use the above ceiling plan for reference. The one-line circles are the round flush mount lights, the large squares are the square flush mount lights, the double-line circles are the security cameras, the smaller square with grates is the bathroom vent, the thin rectangles are the linear supply diffusers, and the small rectangles with a border and grates in the middle are the return vents. For the round flush mount lights I used the "100 W - 277 V" variant, for the square flush mount lights I used the "2'x2' (2 Lamp) - 120 V" variant, and for the return vents I used the "9'x7" Face 6"x4" Neck" variant.
Physical Construction: There would already be holes in the drywall and connections and ducts in the ceiling where these components should go. Workers would simply attach these parts to their respective connections or ducts.
Important Info: When placing the first-floor ceiling-mounted components, I first determined where the light locations would be. After determining light locations, I then installed the supplies and returns. I placed the linear supply diffusers towards the edges of the room so that the air would be pushed from the sides of the room in, as opposed to from the middle of the room to the sides. Since the most heavily "used" air would be in the middle of the room, the returns, which are more towards the middle of the room, are in a prime location to take in this "used" air. In addition, the air towards the front of the bike shop will be warmed by the sunlight coming in through the windows. Having a supply near the windows will help to circulate this air throughout the room more efficiently.
Materials and Sustainability: All of the lighting fixtures would use LED bulbs. The lights would also be dimmable so that the light brightness can be turned down if needed, helping to reduce energy costs.
Digital Model - Bike Shop Bathroom


Overview: Finish creating the bathroom by installing a toilet, sink with counter, mirror, vanity light, and other accessories.
Digital Construction: Download the sink with counter, mirror, paper towel dispenser, wicker trash can, and toilet paper holder from the "Supplies" section and load them into the project. Load the "Water Closet - Flush Value - Floor Mounted" (Plumbing > MEP > Fixtures > Water Closets) and 'Wall Lamp - Bracket" (Lighting > MEP > Internal) from the Revit "English-Imperial" library. Then, go to the "Bike Shop Floor" floor plan and using the "Component" tool in the "Architectural" tab, place these components. To adjust these components, create a camera 3D view and then click and drag each component (refer to step 12 if you forgot how to do this). To adjust the size of the mirror, click on it and drag the small blue arrows.
To create the poster, download the "Poster in the bathroom" image from the "Supplies" section. I learned how to create posters by following along with this video (video starts at the beginning of the section needed).
Physical Construction: The toilet and sink would be attached to the water and waste water connections. They would then be fastened to the wall and/or floor. All the other accessories would be mounted to the walls.
Important Info: This bathroom is only intended for employees, as they would not have time to use the restroom at the ranger station during their shift.
Materials and Sustainability: A low flush toilet would be installed to reduce the amount of water used. To further reduce water use, a motion sensor faucet would be installed as well. I chose to use a paper towel dispenser instead of an air hand dryer since the bike shop employees would likely prefer to use paper towels. When working on bikes, their hands would be covered in grease and dirt, so paper towels would be useful to wipe their hands with.
Digital Model - HVAC System


To determine what kind and what sized HVAC system Rest and Ride would need, I started by calculating the air tonnage that the building would require. According to this website, Rest and Ride needs a HVAC unit with a tonnage of 1.33 or more.
Square Feet = 20 ft. x 8ft. x 4 = 640 sq. ft. x 25 = 16,000 total number of BTUs needed to cool the space
16,000 / 12,000 = 1.33 tons
Next, I needed to decide on what HVAC system to use. The B and A Trail does have a natural gas line that runs along it. Since we'll most likely already be using more electricity than the solar panels can provide, we should take advantage of using natural gas for heating, while still using electricity for cooling..
After I picked the energy sources for both heating and cooling, I needed to decide on the type of system to use. Since linear supplies and returns were installed in the ceilings, a duct system would need to be used. In a gas and electric HVAC system, the cooling components need electricity to keep the building cool, while the furnace, which heats the building, is powered with natural gas. So, for heating purposes, Rest and Ride should have a 1.5 to 2-ton natural gas furnace. Essentially, the gas furnace is all that is needed to heat the building. This website does a good job of explaining how natural gas heating systems work.
For cooling, it's a little more complicated. I will need to use a split-system air conditioner. There is an indoor and an outdoor unit. The indoor unit is composed of an evaporator coil and blower fan, which are often two separate parts. The outdoor unit includes a compressor and the condenser coil, which is usually one unit (source). All of these cooling components need to be rated for 1.5 tons or higher.
The components used in the Revit model in the HVAC closet are rated for a higher tonnage than needed. However, since the Revit model is for visual purposes, these models work perfectly fine.
Image sources: Gas furnace diagram, Air conditioner diagram
Digital Model - HVAC Closet


Overview: Install the gas furnace and blower fan and evaporator coil unit.
Digital Construction: Download the gas furnace and the blower fan and evaporator coil unit from the "Supplies" section. Next, go to the "Bike Shop Floor" floor plan. Go to the "Architecture" tab and use the "Component" tool to place these objects. Since neither of these components come with ducts, you'll need to model your own. You can do this by double-clicking on one of the components. Then, go to the "Create" tab and used the "Extrusion" tool to make rectangular duct-like shapes. Next, select the extrusions and change the material to aluminum in the "Properties" menu. Load each component back into the project. You can use this method to create ducts for both components. In the above renders, the gas furnace is on the left side of the closet and the blower fan and evaporator coil unit is on the right side. The ducts of both units extend into the ceiling.
Physical Construction: Both units would be connected to electricity while the gas furnace would also be connected to the natural gas line. Then, ducts would be used to connect both units to the duct system in the ceiling.
Important Info: See the HVAC System section (Step 24) to learn more about this building's HVAC system.
Materials and Sustainability: The HVAC system uses natural gas for heating, which can be more environmentally friendly than using electricity from the grid for heating.
Digital Model - Electrical Room/storage Closet



Overview: Install the breaker box and solar power bank, as well as add additional details.
Digital Construction: Download the solar power bank, electric power panel, cardboard box, and wire shelf from the "Supplies" section. For the files that are not in .rfa format, you'll have to open them in Inventor and then export them as .rfa files. To place these components, simply go to the "Bike Shop Floor" floor plan and use the "Component" tool. You can create a camera 3D view and further adjust these components from that perspective.
Physical Construction: The breaker box and solar power bank would be mounted to the walls. A wire would run directly from the solar panels to the breaker box. Instead of using a central inventor, I would use microinverters (which are mounted to the back of each solar panel) since they allow the solar panel system to produce electricity much more efficiently. As you will later see in the "Electrical Plan" all the individual circuits in the building will be connected to the breaker box. The breaker box would also be wired to the main electricity line so that if the solar panels do not produce enough energy, electricity from the grid can be used. If the solar panels create electricity faster than it can be consumed, the excess electricity will be stored in the solar power bank.
Important Info: Aside from being an electrical closet, this space can also serve as a storage area for bike parts and tools.
Digital Model - Bike Shop Details








Overview: Add furniture and other accessories/details to the bike shop to complete the interior of the first story.
Digital Construction: First, I created the counter. I loaded the "Base Cabinet - 3 Drawers" (Casework > Base Cabinets) and "Counter Top Island" (Casework > Counter Tops) from the Revit "English Imperial" library. In the "Bike Shop Floor" floor plan, place these components using the "Component" tool in the "Architecture" tab.
Now, we can place all of the other details. From the "Supplies" section, download the small interior trash can/recycling bin, BMX bike, bike 1, bike 2, wall-mounted shelves, simple clock, stool, tablet-based cash register, bike hook with bike, tube/cartridge recycling bin, workbench, workbench with tools, bike handlebar, bike handlebar grips, bike suspension fork, BMX tire and rim, bike pedals, screwdriver, wrench, bike seat, pliers, bike helmet, bike cassette, water bottle bike water bottle holder, road bike tire and rim, wide bike tire, bike tire pump, store hook, and the tube and cartridge recycling sign. For the files that are not in .rfa format, you'll have to open them in Inventor and then export them as .rfa files. To place these components, simply go to the "Bike Shop Floor" floor plan and use the "Component" tool. For the shelves, you can edit the number of shelves and other dimensions using "Edit Type." It will also be very helpful to create camera 3D views to help adjust the placement of many of these objects. Use "Elevation from Level" in the "Properties" menu to change the height that objects are at. Here's a helpful tip for placing objects on the shelves, where multiple copies of that object are needed: place a few separate parts into one Inventor assembly. For example, rather than carefully align 20 water bottles in Revit, you can make these 20 water bottles as one Revit component, making them much easier to place. Simply open up the part that you want replicas of in Inventor. Create a new assembly file. Next, load copies of that object into the assembly file and arrange them to your liking. Now, simply export the assembly file as a .rfa file. Next, go to Revit and load the .rfa file you just made by going to the "Insert" tab and then selecting "Load Family." Using the "Component" tool you can now easily place multiple objects as if they were one. You can use this method to create tires or rims hanging on the wall. Create an Inventor assembly using the store hook and any of the tires or rims. In the assembly file, align the tires or rims on the store hook so it looks like they are hanging from it. Then, just load it into the Revit project as a .rfa file and place it where ever you would like.
Lastly, we need to make some posters. Download the poster next to tube and cartridge recycling, poster next to bathroom door, poster between front bike shop windows, and poster next to workbench with tools from the "Supplies" section. If you forgot how to use Revit's "Decal" tool, refer back to step 23.
Physical Construction: First, the cabinets would be secured to the floor. Then, the countertop would be fastened to the cabinets. Lastly, the shelves and hooks would be screwed into the walls.
Important Info: Here, I'll explain the bike shop layout and some of the unique features that I decided to add. Customers will walk through the double doors into the customer area of the bike shop. On the right, we have the payment counter with a tablet-based cash register. The cabinets will also serve as storage space for bike tools and parts. On the left, there is a large bin for tube and CO2 cartridge recycling. The bike shop will have a unique program where customers or any trail goers can dispose of their old tubes and used CO2 cartridges. As a reward for disposing of a cartridge or tube, people would earn a free drink or snack voucher that they can redeem at the café upstairs. When I am on the trail, I sometimes see tubes or cartridges on the side of the trail left by careless bikers. Hopefully, this program would encourage more people to recycle these products. There is a wood sign above the bin that denotes its use. Also in the customer area of the bike shop are some shelves. These shelves are stocked with a variety of bike parts and accessories. On the other wall in the customer area are some hooks with tires and rims hanging from them. Next to these tires and rims there are some bike floor pumps for sale.
Now I'll explain the employee part of the bike shop. At the back of the store, you can see some bikes hanging from the wall. These are bikes that employees have finished working on or that still need to be repaired. There are also bike hooks on the wall opposite of the one with bikes on it. A total of five bikes can be hung from these hooks. You may also notice that you can still see the green shipping container doors. These doors are visible because they are functional - employees can open the container doors to access the bike shop's rear deck. In the bike shop area there are also two workbenches, one of which also has a tool wall. This is where all the bike repairs would be made, as demonstrated by the three bikes currently in the shop. Scattered across the workbenches and countertop are a variety of tools and bike components. There are also two stools in the employee area - one behind the counter and another by the workbench. Lastly, to add character, there are a variety of posters on the wall, as well as a clock.
Materials and Sustainability: Any components made from wood (countertop, cabinet, workbenches, and shelves) would be certified by the Forest Stewardship Council (FSC). This means that the wood used to make these products is obtained using low-environmental impact methods.
Digital Model - Second-Floor Wall-Mounted Components

Overview: Install wall-mounted components in the café including duplex outlets, a duplex light switch, fire alarm, fire alarm pull station, and a thermostat.
Digital Construction: Go to the "Café Floor" floor plan. Select the "Architecture" tab and click on the "Component" tool. Select these components from the "Properties" menu, as we already loaded them into the project in "Step 21." To install these objects, simply click on a wall, exactly where you would like to have that component. These components will be automatically placed at the correct height. You can refer to the above floor plan to see where these components should go. The green circle shows where the thermostat is the red circles show where the fire alarm is, and the purple circle shows where the fire alarm pull station is.
Physical Construction: There would already be holes in the drywall and connections in the wall where these components should go. Workers would simply attach these parts to their respective connections.
Important Info: What the switches control will be shown in "Step 38" in the electrical plan.
Materials and Sustainability: Aside from the manual switch, the lights will also be connected to an automatic system that turns off any lights that remain on after there is an extended period of time without any movement in the room.
Downloads
Digital Model - Second-Floor Ceiling-Mounted Components

Overview: Install ceiling-mounted components in the bike shop including square flush mount lights, round flush mount lights, linear supply diffusers, return vents, a bathroom vent, and security cameras.
Digital Construction: Go to the "Café Floor" ceiling plan. Select the "Architecture" tab and then click on the "Component" tool. The components needed for this step were already loaded into the project in "Step 22." Select the various ceiling-mounted components from the "Properties" menu and simply click on the ceiling plan where you would like to place that component. You can use the above ceiling plan for reference. The large squares are the square flush mount lights, the double-line circle is the security camera, the thin rectangles are the linear supply diffusers, and the small rectangles with a border and grates in the middle are the return vents. For the square flush mount lights, I used the "2'x2' (2 Lamp) - 120 V" variant and for the return vents, I used the "9'x7" Face 6"x4" Neck" variant.
Physical Construction: There would already be holes in the drywall and connections and ducts in the ceiling where these components should go. Workers would simply attach these parts to their respective connections or ducts.
Important Info: I used a similar thought process when designing the second-floor ceiling-mounted components as I did for the first floor in "Step 22."
Materials and Sustainability: All of the lighting fixtures would use LED bulbs. The lights would also be dimmable so that the light brightness can be turned down if needed, helping to reduce energy costs.
Digital Model - Café Details





Overview: Add furniture and other accessories/details to the café to complete the interior of the second story.
Digital Construction: First, I created the two counters (one for the coffee machine and one for the payment counter). Use the cabinets and countertop that you loaded into the project in step 26. In the "Café Floor" floor plan, place these components using the "Component" tool in the "Architecture" tab.
Now, we can place all of the other details. From the "Supplies" section, download the spiky plant in pot, chest freezer, mechanical clock, large indoor plant, refrigeration unit, stack of cups, coffee machine, pen, clipboard, box of snack bars, large sports bottle drink, larger snack bag, medium bottle, small bottle, and smaller snack bag. To place these objects, simply use the "Component tool." Don't forget to create camera 3D views to help adjust the placement of many of these objects. Use "Elevation from Level" in the "Properties" menu to change the height that objects are at.
As you can see in the renderings, the bottles, snack bags, and food bar boxes are a variety of different colors. In the "Supplies" section, the objects I provide are the default material. By opening each in Inventor, you can change the materials and colors to your liking. I would also recommend placing multiple items in one assembly file and then exporting that as a .rfa file, as we did for the items on the shelves in the bike shop. This will make stocking the shelves a much more simple task.
Lastly, we need to make some posters. Download the bicycle blueprint in café, poster over chest freezer, and poster by café entrance from the "Supplies" section. If you forgot how to use Revit's "Decal" tool, refer back to "Step 23."
Physical Construction: First, the cabinets would be secured to the floor. Then, the countertop would be fastened to the cabinets. Lastly, the shelves and hooks would be screwed into the walls and the appliances would be installed.
Important Info: Here, I'll explain the café shop layout and some of the unique features that I decided to add. Customers will walk through the entrance. On the left is the payment counter with a tablet-based cash register. Behind the counter is a stool where the café employee will sit. Further along the left side of the container is another counter. On this counter, there is a coffee machine. On the left side of the café, there are also two refrigerators that hold water, sports drinks, and other refreshing beverages. The last thing on the left side of the café is a shelf that holds additional bottled beverages. On the right side of the café, closest to the entrance, are some shelves. On the shelves are some prepackaged snacks including boxes of different kinds of food bars, as well as bagged snacks like nuts and crackers. After these shelves, there is a chest freezer that would hold ice cream. Lastly, there are a few decorative touches around the café including a mechanical clock, two potted plants, and posters.
Materials and Sustainability: Any components made from wood (countertop, cabinet, workbenches, and shelves) would be certified by the Forest Stewardship Council (FSC). This means that the wood used to make these products is obtained using low-environmental impact methods. The refrigerators and the chest freezer would be ENERGY STAR certified.
Digital Model - Exterior Building Details







Overview: Add outdoor furniture, lighting, and other important exterior building details.
Digital Construction: From the "Supplies" section, download the rolling trash can, balcony trash can, barn outdoor light, round table with chairs and umbrellas, wood table and chairs, tool chest, gas meter, concrete splash block, compressor and condenser coil unit, outdoor potted plant, café sign, and hours sign. Load these components into the project. Then, use the "Component" tool to place these objects. Make sure to place floor-mounted objects at the correct level and remember to change the "Elevation from Level" if needed. To create a small concrete pad for the compressor and condenser coil unit, duplicate the "Generic 12"" floor and change the material to concrete. Then use the "Floor" tool to draw the concrete pad. To help align wall-mounted components, make sure to use camera 3D views.
Physical Construction: The concrete pad for the compressor and condenser coil unit would be poured with the foundation. Later in the build process, the gas meter would be connected to the incoming gas line and the building's natural gas connection. The compressor and condenser coil unit would be connected to power and the blower and evaporator coil unit. The outdoor lights would be wired and fastened to the side of the containers.
Important Info: I wanted to make the rear deck a place where the bike shop employees can work outside, especially on days with nice weather. Since the container doors open, bikes and tools can easily be brought outside, such as the rolling tool bench in the rendering. At the end of the day, the tool chest and any other tools can easily be brought inside.
I chose these exterior lights because their curviness complements the boxiness of the shipping containers.
Since a natural gas line runs alongside the trail, creating a connection between Rest and Ride's gas meter and the main line should be simple.
Digital Model - Site Plan and Subregions

.jpg)
Overview: Draw the site and create all subregions.
Digital Construction: To start, select the "Site" plan under "Floor Plans" in the "Project Browser." Then, select the "Massing and Site" tab. Click on the "Toposurface" tool. In the light green rectangle, change the elevation to -0' 6". This will allow us to see the top part of our foundation. Now, place four points to create a large rectangle. These points mark the corner of our site plan. Select the green check to finish. To change the material of the toposurface, select it and change the material in the "Properties" menu. I used grass.
To create subregions, select the "Massing and Site" tab and then click on the "Subregion" tool. You can now draw the subregions. To get smooth curves, I like creating subregions with a spline. Before clicking the green check to finish drawing each subregion, make sure that the boundary lines you draw are not disconnected anywhere. To change the material of each subregion, select that subregion and then change the material in the "Properties" menu.
As you can see, I label the site plans with letters. Each letter stands for the material that I used for that subregion. "G" stands for grass, "M" stands for mulch, "A" stands for asphalt, and "G" stands for gravel. For the forest subregions, I used dirt.
Physical Construction: To create gravel or mulched areas, first, any vegetation would be removed and the ground would be leveled. Then, edging would be dug into the ground. Next, ground cover fabric would be spread to prevent weeds from growing. Lastly, gravel or mulch would be put over the fabric.
To create the paved section connecting Rest and Ride to the B and A Trail, the ground would first be cleared of any vegetation. Then, the ground would be leveled and compacted. Then, a compacted stone base would be placed. Lastly, hot mix asphalt would be poured (source).
Important Info: The gravel subregion to the left of Rest and Ride will be used as a rain garden. The asphalt surface lets trail goers easily access the bike shop and the café stairs. The two gravel areas on each side of the asphalt section will be used for a bench and for a self-service bike repair station. The other gravel subregion serves as a walking path to the bike shop rear deck and the bike shelter that will be installed soon. The mulched areas will be beds for plants.
Materials and Sustainability: To reduce the amount of runoff, the paved area will utilize pervious asphalt. The gravel and mulched areas are naturally pervious, so they will cause little to no runoff. The mulch would be sourced from local landscaping businesses that shred fallen trees and branches.
Downloads
Digital Model - Site Details Left of Rest and Ride


Overview: Create site details to the left of Rest and Ride including a rain garden and plantings.
Digital Construction: First, we can load plants into our project by going to the Insert tab and selecting "Load Family." In the Revit "English-Imperial" library, selected the "Planting" folder and then load the "RPC Tree - Conifer," "RPC Tree - Deciduous," and "RPC Shrub" into the project. Now, when we select the "Component"tool, there are a variety of different plants in the "Properties" menu to choose from. Remember to place all plants at the "Bottom of Containers" level with an elevation of -0' 6". To create the forests on each side of the site plan, plant a variety of many deciduous trees, evergreens, and shrubs close together. To create the rain garden, plant a few varieties of shrubs and grasses close together. I also created a small grove of pine trees to the left of Rest and Ride.
Physical Construction: In real life, the trees and shrubs around Rest and Ride would be planted before any mulch or gravel is spread.
To create the rain garden, first, an area of 100 to 150 square feet should be dug out. Make sure that the downspout extends about a foot into the hole. The depth of the hole should be about two feet in the middle and should slope upwards towards the edges. Next, a berm (a short mound of dirt) should be made that goes around the edge of the hole. Then, fill the hole with rain-garden soil (about 30% sand, 30-40% loamy topsoil, and 30% organic material (source)) so that the middle of the hole is now only about one foot deep. If desired, the edge of the rain garden could be lined with stones. An overflow area should be made using stones at the edge of the rain garden. The overflow area will direct excess water out of the rain garden in the case there is a very large storm. Now, plants can be added. Plants that do best in very wet conditions should be planted at the bottom of the rain garden, plants that can handle some standing water should go on the sloped sides, and plants that prefer drier conditions should be planted around the edges. Ideally, native plants should be used. For this rain garden, I would plant fragrant sumac and woodland stonecrop along the edges, swamp milkweed and black-eyed Susans in the middle, and switch grass and Virginia bluebell at the very bottom of the rain garden (source). Lastly, fine gravel and/or mulch can be put around the plants. I learned about the process of making a rain garden from this website.
Important Info: The plant species used in the Revit model are for visual purposes only. The actual species that would be planted differ from those in the rendering.
Materials and Sustainability: The rain garden is great for reducing the amount of runoff Rest and Ride creates. And since plenty of native plants are used, including a few flower varieties, many butterflies and bees would visit the rain garden.
Digital Model - Site Details Behind Rest and Ride

Overview: Create site details behind Rest and Ride including a bike storage area and plantings.
Digital Construction: To start, download the bike shelter and street light from the "Supplies" section and load these components into the project. Use the "Component" tool to place the bike shelter on the gravel subregion and the street light near the bike shelter. Also, place a few shrubs in the mulch subregion that is next to the deck. Ensure to place all components at the "Bottom of Containers" level with an elevation of -0' 6".
Physical Construction: The bike shelter would likely be secured to the ground with small concrete footers. The street light would be attached to a concrete footer in the ground as well. The shrubs would be planted before the mulch is spread.
Important Info: The bike shelter will serve as an overflow bike storage area for the bike shop. If there are a lot of bikes at the shop for repair and not all fit inside, both bikes that need to be fixed and bikes that have been fixed can be kept in the shelter. Of course, the bikes would be locked securely. The bike shelter can also serve as a bike pick-up area. After a customer's bike has been repaired, it will be taken outside and locked at the bike shelter. The bike shop employees can then text the customer that their bike has been repaired, and in that text, they can send the combination code to unlock the bike. The customer can then come to Rest and Ride at any time to pick up their bike. The bike shelter could even serve as a bike drop-off. If a customer needs their bike fixed but the bike shop is closed, they can lock their bike in an open slot, and then text the bike shop that their bike has been dropped off. Rest and Ride employees can then fix the bike when the bike shop reopens.
Materials and Sustainability: The street lights placed around Rest and Ride would be solar-powered, thus helping to reduce the energy consumption of Rest and Ride.
Digital Model - Site Details Right of Rest and Ride




Overview: Create site details to the right of Rest and Ride including a bike rack, bench, signs, and a playground with a shade sail.
Digital Construction: From the "Supplies" section, download the playground, bench, bike rack, and octagonal picnic table from the "Supplies" section. Ensure to place all components at the "Bottom of Containers" level with an elevation of -0' 6". In the two mulch subregions, place small trees, bushes, and grasses. By the right wall of "Rest and Ride," install a bike rack. In the gravel subregion that is connected to the paved area, place the bench. Place a tree next to the bench for shade. Then, place street lights near the front-right edge of the building and near the bench.
Now, we will create the playground area. Click the "Massing and Site" tab and then select "Building Pad." Now, draw an organic shape with the spline tool that will serve as an outline for the playground area. Then, select the "Offset" tool. In the light blue rectangle that appears, change the offset to 0' 6". Next, click on the line you just drew. Now we have a six-inch-wide strip. In the "Properties" menu, make sure the "Level is Bottom of Containers" and that the "Height Offset from Level" is 0' 0". Next, use "Edit Type" to change the material of the edging. Also, make sure that the building pad is at least six inches thick. I used black plastic for my edging material. Select the green check to create the raised surface. To make a mulched area, select the "Building Pad Tool" again. Use the "Pick Lines" tool to select the inside line of the edging. In the "Properties" menu, change the "Level to Bottom of Containers" and change the "Height Offset from Level" to -0' 2". Next, use "Edit Type" to change the material of the building pad to mulch. Also, make sure that the building pad is at least four inches thick. Select the green check to finish creating the mulched area.
Next, we need to place poles for the shade sail. Use the "Column" tool to place 3 columns. I used the columns that I used from the building for this purpose. Make sure the columns are placed at the 'Bottom of Containers" level with a "Base Offset" of -0' 2". Make the "Top Level" "Top of Containers." To alter the height of each column, change the value of the "Top Offset." I made each of my columns a different height. While we are at it, we can also place the picnic tables and playground. Place these components at the "Bottom of Containers" level with a "Base Offset" of -0' 2".
Now we can create the shade sail. I found this to be one of the most complex parts of this whole project. I was able to make a shade sail by following along with this video (video starts at the beginning of the section needed). I used canvas for the fabric material and canvas, light brown for the rope material.
Physical Construction: To install the bench, a concrete slab would be poured and then the bench would be fastened to it. The street light would be attached to a concrete footer in the ground. The plants would be planted before the mulch is spread. Two small concrete footers would be poured for the bike rack and then the bike rack would be fastened to them.
To create the playground area, first, the ground would be cleared of vegetation and leveled. Then, concrete footers would be poured and the columns would be attached to them. Next, footers would also be poured for the playground, and columns of the playground would be fastened to them. Then, the playground would be assembled and the picnic benches would be placed. Now, ground cover fabric would be spread and mulch would be thrown over it. Lastly, the shade sail would be hung from the columns.
Important Info: I wanted to create a place for younger children to play, especially since many parents take their children on the trail for walks or bike rides. Parents can relax on the picnic tables while children enjoy themselves on the playground. I got the idea of using a shade sail from Kinder Farm Park, a local park with a large playground that is also partially covered with a shade sail.
Materials and Sustainability: Again, the street lights placed around Rest and Ride would be solar-powered. The bike rack would be made from recycled metal. Recycled plastic edging would be used for the border around the playground area. The wood used to create the picnic benches should be certified by the Forest Stewardship Council (FSC). Aside from metal poles and fasteners, most parts of the playground can be constructed from recycled plastic. The shade sail would be made from eco-friendly fabric.
Digital Model - Site Details in Front of Rest and Ride





Overview: Create site details in front of Rest and Ride including a sign, plantings, and a bike self-repair station.
Digital Construction: From the "Supplies" section, download the cylindrical trash can, bicycle planter, repair station, and sign by trail from the "Supplies" section. Ensure to place all components at the "Bottom of Containers" level with an elevation of -0' 6". Using the "Component" tool, place a street light next to the bike shop entrance and by the trail. In the mulch subregions in front of the building place a variety of short bushes and trees. Install another bike rack in front of Rest and Ride. Place the trash can next to the bike shop entrance. In the gravel subregion that is connected to the paved area, place the bike repair station. Place a tree next to the repair station to provide shade. Then, place plants in the mulch subregion that is by the trail. Next place the sign near the trail. Put the bicycle planter next to the sign. You can even put a potted plant in the bicycle plant if you are feeling ambitious.
Physical Construction: The street light would be attached to a concrete footer in the ground. The plants would be planted before the mulch is spread. Two small concrete footers would be poured for the bike rack and then the bike rack would be fastened to them. Small concrete footers would also be poured for the repair station and the sign. Each component would be fastened to its concrete footer after they dry.
Important Info: I modeled the bike repair station after the Dero Fixit station. There is one of these bike repair areas at the local ranger station (see above photo).
Materials and Sustainability: Again, the street lights placed around Rest and Ride would be solar-powered. The bike rack would be made from recycled metal.
Digital Model - Plumbing Plan


We will now create a plumbing plan. In the "Project Browser," "Duplicate" the "Bike Shop Floor" floor plan. Rename it as "Plumbing Plan." Go to that floor plan. Next, we want to hide all elements in this view that don't use water. Simply right-click and select "Hide in View" to make elements disappear. Now, select the "Manage" tab, select the "Additional Settings" drop-down arrow, and select line styles. Under "Modify Subcategories," click "New." Name the line "Cold Water" and select "OK." Now find the line you just created in the list of lines. Change the "Line Color" to blue and the "Line Weight Projection" to 4. Repeat this process to make a red "Hot Water" line, a green "Sewer" line, and an orange "Vent" line. To draw lines, select the "Annotate" tab and then "Detail Line." Change the line type that you draw within the "Line Style" drop-down menu. When drawing the sewer line, use 45-degree angles as this makes it easier to clean out the pipes if they become clogged. Both the sink and the toilet would be attached to one vent pipe.
Here, I will also mention that I plan to use an undersink water heater instead of a regular water heater. Since the sink is the only fixture in Rest and Ride that requires warm water, it would be a waste of money, energy, and space to install a regular water heater. That is why in the floor plan, the hot water line only goes from the main line to the faucet.
To learn how to make my own sheet, I used this video (video starts at the beginning of the section needed). Once you finish making your sheet, load it into the project as you would with any other component. To make a new sheet in the project, go to the "Properties" menu, right-click "Sheets," and then select "New Sheet." Choose the sheet that you just loaded into the project. To place the plumbing plan on the sheet, just find the "Plumbing Plan" floor plan. Click on it and drag it onto the sheet. Then, adjust the scale of the "Plumbing Plan" as needed.
Downloads
Digital Model - Electrical Plan

Next, we will create a plumbing plan. In the "Project Browser," "Duplicate" the "Bike Shop Floor" ceiling plan. Rename it as "First-Floor Electrical Plan." Go to that ceiling plan. Next, we want to hide all elements in this view that don't use electricity. Simply right-click and select "Hide in View" to make elements disappear. Now, select the "Manage" tab, select the "Additional Settings" drop-down arrow, and select line styles. Under "Modify Subcategories," click "New." Name the line "Bathroom Lights" and select "OK." Now find the line you just created in the list of lines. Change the "Line Color" to light green and the "Line Weight Projection" to 4. Repeat this process to make a red "Furnace Closet Light" line, a brown "Bathroom Vent" line, a yellow "Climate Control" line, a light blue "Solar Power Bank" line, a dark green "Exterior Lights" line, a dark blue "Electrical Closet Lights" line, an orange "Bike Shop Lights" line, a pink "Security Camera" line, and a purple "Fire Alarm System" line. To draw lines, select the "Annotate" tab and then "Detail Line." Change the line type that you draw within the "Line Style" drop-down menu. Use the "Spline" tool when drawing to create arcs between each connection.
You will repeat this process for the second-story electrical plan. When you first start, in the "Project Browser", "Duplicate" the "Café Floor" ceiling plan. Rename it "Second-Floor Electrical Plan." Use the same line colors as you did for the first floor.
To make a sheet, create a new one and name it "Electrical Plan." Drag the "First-Floor Electrical Plan" and the "Second-Floor Electrical Plan" onto the sheet. Lastly, adjust the scale of the electrical plans as needed.
In my Electrical Plan, I purposefully did not show the outlet connections as this would make the plan overly confusing to look at. The first-floor outlets would be on one circuit and the second-floor outlets would be on another circuit.
Downloads
Digital Model - Energy Usage Calculations
After installing all of the electricity-powered components, I wanted to find out if Rest and Ride could derive its energy solely from solar power. To start, I roughly calculated how much power would be used each day at most:
- 2-ton air conditioning unit running for 15 hours = 22.5 kWh
- All interior lights on for 6 hours (10x50 Watt lights and 5x100 Watt lights) = 6 kWh
- All exterior lights on for 8 hours (11x50 W lights) = 4.4 kWh
- 2 refrigerators on for 8 hours = 6 kWh
- 1 chest freezer on for 14 hours = 2 kWh
- 1 coffee machine on for 1 hour = 0.8 kWh
This amounts to a total of 41.7 kWh.
If each solar panel produces a maximum of 350 watts, each is likely producing about 200 to 250 watts on average due to imperfect conditions and indirect sunlight throughout the day. Multiplying that with six solar panels gives a range of 1.2 to 1.5 kWh produced per hour. In Maryland, the average amount of sunny hours per day is about seven (source). Multiplying seven hours by the range of kWh produced per hour gives us a new range of 8.4 to 10.5 kWh produced per day on average. This is only about a quarter of the daily maximum consumption. However, 8.4 to 10.5 kWh would likely be closer to a third of a day's energy consumption on a normal basis. Either way, Rest and Ride would need to rely on the grid for at least some of its energy needs.
LEED Scorecard

After completing Rest and Ride, I wanted to use the LEED Scorecard to see how environmentally friendly the building is. I downloaded the LEED v4 for Building Design and Construction checklist from here. I used the LEED scorecard to better understand how to earn points in each category. I am happy with the results - 61 points earn LEED Gold. I also had nine "maybe" points, so the total could have been up to 70 points. Since I was unsure of the number of points to assign for a few criteria, the point total would probably be within plus or minus 12 points, if I had to give a good estimate.
What hurt me the most was the Energy and Atmosphere section. Even though Rest and Ride does create some of its own renewable energy, it's not enough to earn a significant amount of points in criteria like Optimize Energy Performance. Rest and Ride also performed surprisingly poorly in the Location and Transportation section. Although the development of the site would be low impact, and although the structure obviously promotes green forms of transportation, it's the location itself that is the problem. Since Severna Park is a suburban town, many amenities are not easily accessible by foot or bike (at least those not situated on the B and A Trail). That, and public transportation is sparse and usually not a viable option to use to quickly travel somewhere locally.
It's also worth noting that many of the points received were from the construction process. Although not outlined in this Instructables, these practices and actions could be implemented fairly easily during the construction of Rest and Ride.
Downloads
More Renders and Final Remarks





























You made it! Thank you for taking the time to look at my Instructables and I hope you enjoyed it.
Personally, I liked this design challenge because it let me address a need in my community that I am interested in. Thank you, Autodesk, for providing this fun scholarship opportunity!